發布日期:2023-01-06
電動隔膜泵——體積小、重量輕、拆裝方便的新型泵
電動隔膜泵——體積小、重量輕、拆裝方便的新型泵
瀏覽次數:276
發布日期:2023-03-02 15:46
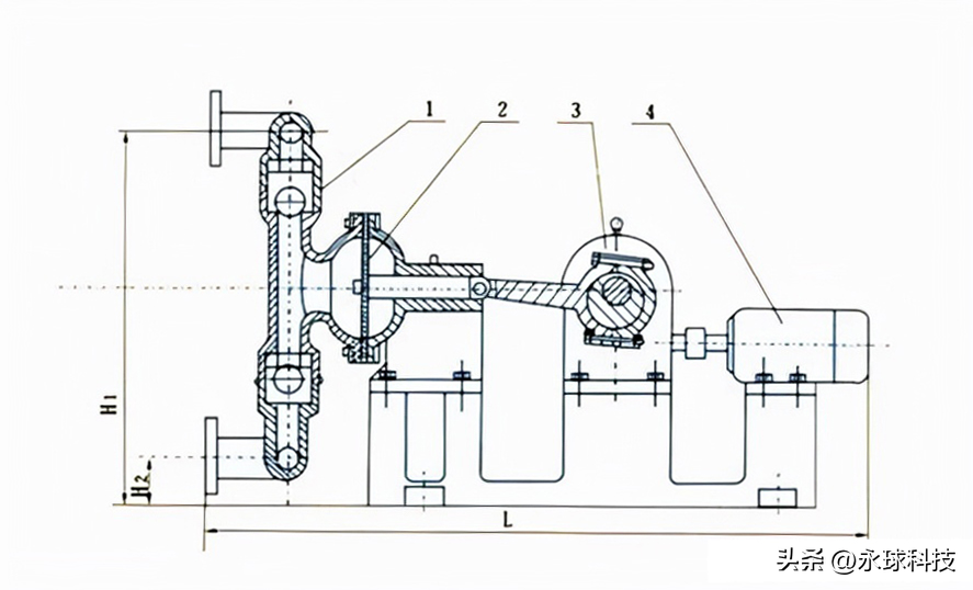
電動隔膜泵工作原理
電動隔膜泵工作原理電機(4)通過減速箱(3)帶動左右兩端柱塞上的隔膜(2)來回往復運動。 在左、右泵腔中,帶有上下四個單向球閥(1)的膜片的運動引起工作腔中容積的變化,迫使四個單向球閥交替開啟和關閉,從而不斷地吸入和排出液體。
電動隔膜泵的應用:
- 各種劇毒、易燃、易揮發的液體;
- 各種強酸、強堿和腐蝕性液體;
- 溫度較高的介質,可在150℃以下輸送;
- 作為各種壓濾機的預壓力輸送裝置;
- 熱水回收和循環;
- 油輪、油庫、石油裝卸;
- 泵吸泡菜果醬、土豆泥、巧克力等;
- 泵送油漆、樹膠、顏料粘合劑;
- 水泥灌漿、砂漿、各種瓷軸漿;
- 各種橡膠乳液、有機溶劑和填料;
- 清理油輪駁船的倉庫,吸收倉庫中的污水和殘油;
- 啤酒花和發酵粉漿、糖漿;
- 在礦井、隧道和下水道中泵送污水和沉積物;
- 各種特殊介質的抽吸和輸送。

永球 DBLY電動隔膜泵
電動隔膜泵是一種結構緊湊、體積小、重量輕、拆裝方便的新型泵。通過性能好,雜質顆粒大,泥等。可以毫不費力的通過。 近年來,由于隔膜材料的突破,世界上越來越多的工業化國家采用這種類型的泵來代替一些離心泵和螺桿泵,用于石油化工、陶瓷、冶金等行業。產品設計參考了美國ABEL公司的樣機,泵適用于低壓,即出口壓力小于等于3 kgf/cm2。
分享到:



